
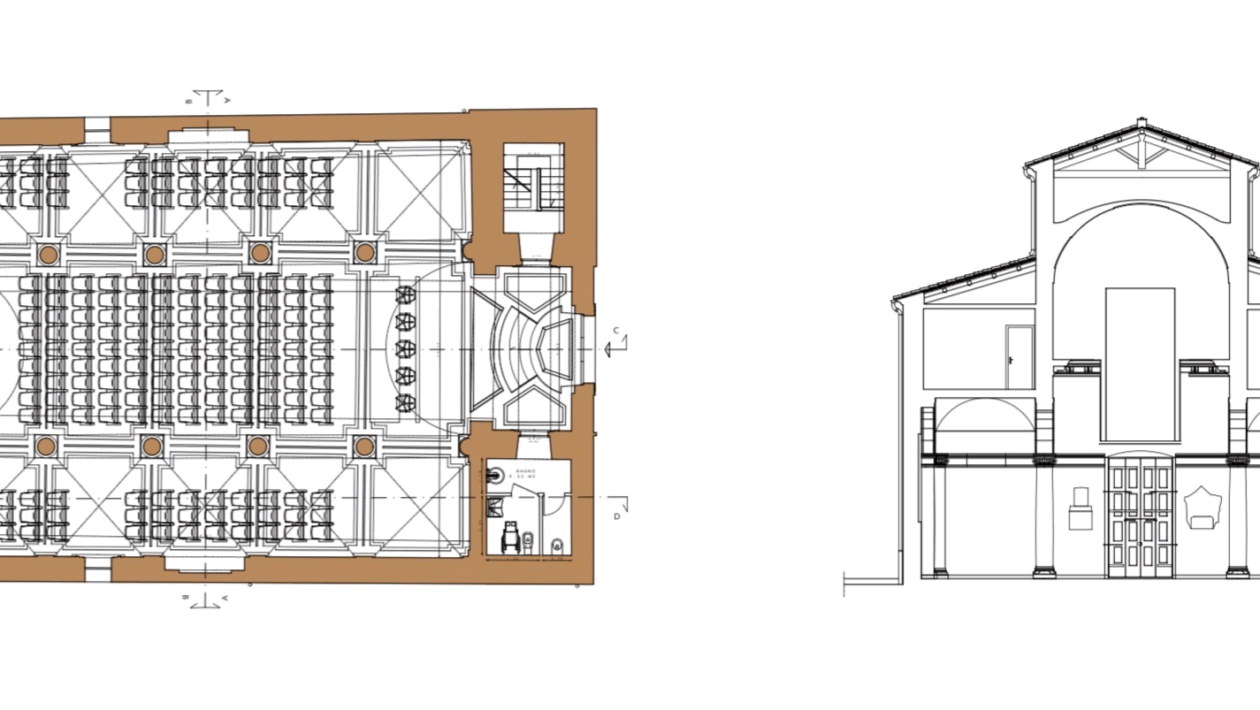
Il tema della riqualificazione dell’edificio era già stato affrontato nel 2023. A gennaio partirà il cantiere VITERBO – La ex chiesa di San Giovanni Battista …
Il tema della riqualificazione dell’edificio era già stato affrontato nel 2023. A gennaio partirà il cantiere VITERBO – La ex chiesa di San Giovanni Battista …
Proseguono le scorribande di giovani e giovanissimi, viterbesi e non, tra le vie del Sacrario VITERBO – Continuano ad agire indisturbati i giovani ragazzi che …
Zaffera, chiesa degli Almadiani, Lazzaretto e Torre Civica sono solo alcuni esempi delle aree che saranno riqualficate VITERBO – Con oltre 10 milioni di investimenti, …